- Ved modtagelsen skal du kontrollere, at alle elementerne er i overensstemmelse med ordrebekræftelsen.
- Du skal kontrollere at der ikke er synlig skader. Det kan være transportskader skader på glas eller skrammer. Hvis der er skader, eller skade på indpakning ved levering, skal det påtales til chauffør og det skal noteres på fragtbrevet.
- OBS: Du må ikke flytte elementerne fra palle hvis der er skader, så skal vi have billeder og løsning aftales.
- Hvis du indenfor 5 arbejdsdage ikke har kontaktet os vedr. eventuelle fejl eller mangler, vil din reklamationsret bortfalde. Det samme sker, hvis elementerne monteres.
Modtagelse, opbevaring og overdragelse
Montering og fastgørelse
Korrekt montering er en forudsætning for elementernes funktion og levetid. Derfor bør det udføres af fagfolk. De efterfølgende anvisninger behandler nogle af hovedpunkterne vedrørende monteringen, men ikke alle detaljer er medtaget. Hvis der er tvivl, så kontakt os.
Montering
Ved selve elementmonteringen vil det for de fleste elementtyper være hensigtsmæssigt at aftage vindues- /dørrammen under den første del af arbejdet med karmmonteringen. Det samme er gældende for skydedøren. Her kan topskinnen skrues af for at afmontere rammen. Derefter vippes rammen ud fra toppen, hvorefter den kan løftes af.
Karmen placeres i murhullet med ensartet fugebredde ved side- og overkarm, selvfølgelig med hensyntagen til bundkarmens niveau i forhold til sålbænk/gulvplan.
Fugebredden bør normalt være ca. 12 mm. Det anbefales, at vindues-/-dørelementet placeres med en tilbagetrækning på 4-5 cm fra ydersiden, da det giver en vis beskyttelse mod vejret.
Der skal være fast underlag ved alle fastgørelsespunkter samt passende mellemrum, så der er plads til fugemateriale - både udvendigt og indvendigt. Fladen på det faste underlag bør ikke være mindre end 25 cm2, og materialet skal være tryk - og vandfast.
Blivende underlag må dog aldrig anvendes ved overkarm på brede elementer, som f.eks. skydedøre, hvor der kan være risiko for belastning fra den overliggende konstruktion. Vindues- og dørelementer må generelt ikke belastes af andre bygningsdele.
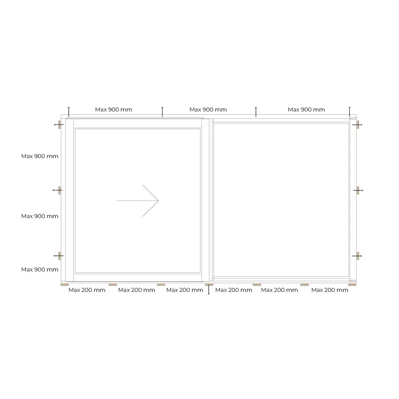
Montering på vinkler
- Der gælder de samme regler, som ved montering med skruer gennem falsen.
- Afstanden må mellem dem/fastgørelsespunkter ikke overstige 900 mm.
- Der anvendes vinkler, der støtter korrekt.
- Ved hængslede elementer er det vigtigt, at styrken (tryk og træk) overføres via vinklen, eller der efterskrues.
Fastgørelse
Vinduer og yderdøre skal altid fastgøres med karmskruer/-dyvler eller beslag afhængig af murens 
beskaffenhed. Fælles for de forskellige fastgørelsesmetoder er - uanset metode, at alle kræfter fra både ydre påvirkninger samt egenvægt skal kunne overføres. 
Afstanden mellem fastgørelsespunkter må generelt ikke overstige 900 mm.
| 
 Til skalmuren: Til bagmur inden skalmuring: |   Hvis muligt placer karmskruer/-dyvler i karmfalsen, det giver det flottest resultat. |   Hvis ikke, så placeres karmskruer/-dyvler i karmen. | 
Specielt for vinduer og døre
Placering af klodser og fastgørelsespunkter
For korrekt montering er placering af klodser og fastgørelse altafgørende. Det er illustreret her.
Klik på billederne for at zoome ind.
|   Blivende opklodsning |   Fastgørelse | 
Placering af karmskruer
Her er det illustreret på et udvalg af snittegninger, hvor karmskruen skal placeres. Klik på billederne for at zoome.
OBS brug altid karmskruer med hoved.

Fugning
Fugearbejdet skal udføres som beskrevet af Fugebranchens Samarbejds- og Oplysningsråd, FSO. Læs mere her www.fugebranchen.dk
Ved arbejdet med isoleringsmaterialet (stopningen) må der ikke ske en komprimering af materialet, da dette medfører krumning af karmdelene. På udvendig side skal der altid afsluttes med en beskyttende afdækning i form af fugemasse, fugebånd eller anden effektiv foranstaltning.
Det skal ved bundkarmen sikres, at den udvendige fugning ikke helt eller delvis dækker drænhuller eller -spalter i falsdelens underside.
| Træ, side + top karm: | Der skal fuges til forkant på træ. | 
| Træ/alu inkl. drejekip, side + top karm: | Der skal fuges til forkant på alu. | 
| Træ, bundkarm: | Der skal fuges til forkant på træ. | 
| Træ/alu, bundkarm: | Der skal fuges til forkant på træ. | 
| Træ/alu, fastkarm, bundkarm: | Der skal fuges til forkant på træ. | 
| Drejekip, bundkarm: | Der skal fuges til forkant på træ. | 
| Udadgående. dørtrin, alu: | Fuges 12 mm fra forkant. | 
| Indadgående, dørtrin, alu: | Fuges 22 mm fra forkant. | 
| Sammenstillede elementer: | 12 mm fuge vandret og lodret. Overparti skrå fuge. | 
Tryk på billederne for at zoome.
Funktion og betjening
Klik på en fane, for at læse om funktioner og betjening af de forskellige typer.
Finjustering døre
Oplever du at døren går stramt, binder lidt eller går imod låseblik
skal følgende tjekliste gennemgås:
- Tjek at hagekolver er smurt tilstrækkeligt ellers smør med syreneutral klar fedt.
- Tjek om dørbeslag er spændt ordentligt til. Prøv at stramme skruerne efter.
- Tjek at karmskruerne er spændt helt til, selvfølgelig uden at trække karmen skæv.
- Tjek at karmskruen er monteret i det forborede hul i hængslet.
- Tjek at hængselsiden er monteret i lod.
- Tjek om døren lukker parallelt med lukkebeslagsiden.
- Tjek at låsebeslag sidder overfor låsestolpen ellers skal det justeres.
- Tjek at dørpakning ikke har forskubbet sig under montage.
Såfremt ovenstående er tjekket og fundet i orden skal service team kontaktes.
 
            Vedligeholdelse
Der skal foretages almindeligt vedligehold af vinduer og døre, hvilket omfatter rengøring og smøring samt kontrol af tætningslister og glasbånd. Derudover skal der løbende holdes opsyn med overflader, således at eventuelle skader kan udbedres hurtigst muligt, efter at de er opstået. Specielt vandret liggende lister bliver slidt af vejr og vind, og skal derfor vedligeholdes hyppigere end øvrige overflader.
SBI-anvisning 76 · 5. udgave · ISBN 87-563-0962-7 · Copyright statens byggeforskningsinstitut 1997.
Undgå fugtskader - luk vinduet op
 
            Opholdsrum
- Luft ud et par gange om dagen eller benyt udeluftventiler, hvis sådanne findes.
- Hvis ruderne begynder at dugge, så sørg for mere udluftning.
- Luk ikke helt for varmen i rum, som ikke benyttes.
- Anbring ikke skabe eller større møbler helt tæt op mod en ydervæg - rumluften skal kunne cirkulere bagom, ellers kan der komme mugpletter på væggen.
 
            Soverum
- Luft ud og sørg for, at sengetøjet bliver luftet hver morgen.
- Vend madrasserne af og til.
- Lad ikke soverum være helt uopvarmede.
- Hvis ruderne dugger, så sørg for bedre udluftning til det fri eller eventuelt til boligens andre rum.
 
            Køkken
- Tilstop eller luk aldrig aftræksåbning eller udsugningsventil.
- Luk helt op for udsugningsventil eller lad køkkenventilator eller emhætte køre for fuld kraft under madlavning.
- Læg låg på gryder under madlavning, så kommer der ikke så megen fugtighed ud i køkkenet.
- Luft godt ud under og efter madlavning.
 
            Baderum
- Tilstop eller luk aldrig aftræksåbning eller udsugningsventil.
- Undgå så vidt mulig tøjvask og især tøjtørring i lejligheden - men kan det ikke undgås, så benyt baderummet og sørg for god udluftning.
- Luft godt ud efter badning.
- Afkast af varm og fugtig luft fra tørretumbleren bør føres direkte til det fri.
DVV garantien
BILAG 14 - Forventet udfald af industrielt overfladebehandlede træelementer
Virksomheder certificeret efter De Tekniske Bestemmelser for DVV udfører en overfladebehandling på træelementer, der minimum giver følgende udfald:
Alle flader er behandlet, men lagtykkelsen kan ikke forventes ens overalt.
| Forventet udfald | Funktionsklasse* | Kommentarer | |
| Synlige flader ved lukket element. | DLGU** | III | agtykkelsens middellukket element værdi > 60 μm (80 μm) | 
| Synlige flader ved åbnet element. | DG** | III | Overfladen skal være ikke sugende | 
| Ikke synlig overflader (mod mur). | Intet krav | 
| Henvisninger: | Eksempler: | 
| *Funktionsklasse IIII | Syd- og vestvendte bygningsdele med III skiftende fugtpåvirkning eller trafikforurening eller anden aggressiv påvirkning. Se desuden supplerende udfaldsbeskrivelse. | 
| **Dækket, lukket, glat, og udfyldt flade (DLGU) | Flader, kanter og false står ensartede i kulør glat og udfyldt og glans samt er glatte at føle på. Porer er lukkede. Huller, revner og samlinger er lukkede og udfyldte. Ujævnhed hidrørende fra underlaget kan forekomme. Hårdtræ er undtaget fra krav om udfyldt flade. | 
| ***Dækket og glat flade (DG) | Flader, kanter og false står ensartede i kulør glat og udfyldt og glans samt er glatte at føle på. Ujævnhed, åbne porer, huller, revner og samlinger hidrørende fra underlaget kan forekomme. | 
(Terminologi ifølge Malerfagligt Behandlings-Katalog, Teknologisk Institut).
Garantierklæring
10 års garanti
Har du brug for hjælp?
Vores serviceteam er klar med professionel vejledning og personlig hjælp.
 
             
             
            Servicetekniker
Esben Kirkegaard
 
            Servicetekniker
Jesper Pedersen
 
            Fakta om dug på vinduerne
Vidste du, at dug på ydersiden af vinduet faktisk er et godt tegn? Det viser, at dine vinduer isolerer som de skal, og at varmen fra dit hjem ikke slipper ud.
Vil du vide mere om, hvorfor dug opstår, og hvad det betyder for dine vinduer? Klik videre og få hele forklaringen.
 
            Termisk brud i glasset
Er glasset revnet uden nogen synlig årsag? Det kan skyldes termisk brud eller termisk sprængning. Kendetegnet er få, jævne brudlinjer, som starter fra glassets kant og har ret vinkel mod overfladen. Dette sker naturligt på grund af temperaturforskelle og betyder ikke, at der er fejl i vinduet.
 
                    



 
             
             
             
             
             
             
             
             
             
             
             
             
             
             
             
             
             
             
             
             
             
             
             
             
            









 
             
             
             
                                                     
                                                     
                                                     
                                                 
                                                 
                                                     
                                                    